Appartamento in vendita a Siena, Costalpino - Costafabbri
Riferimento A000132
ZonaCostalpino - Costafabbri
TipologiaAppartamento
Metri quadrati120
Vani5
ComuneSiena
Classe energeticaF (153,05 KWh\m2a)
Prezzo€ 390.000
Descrizione
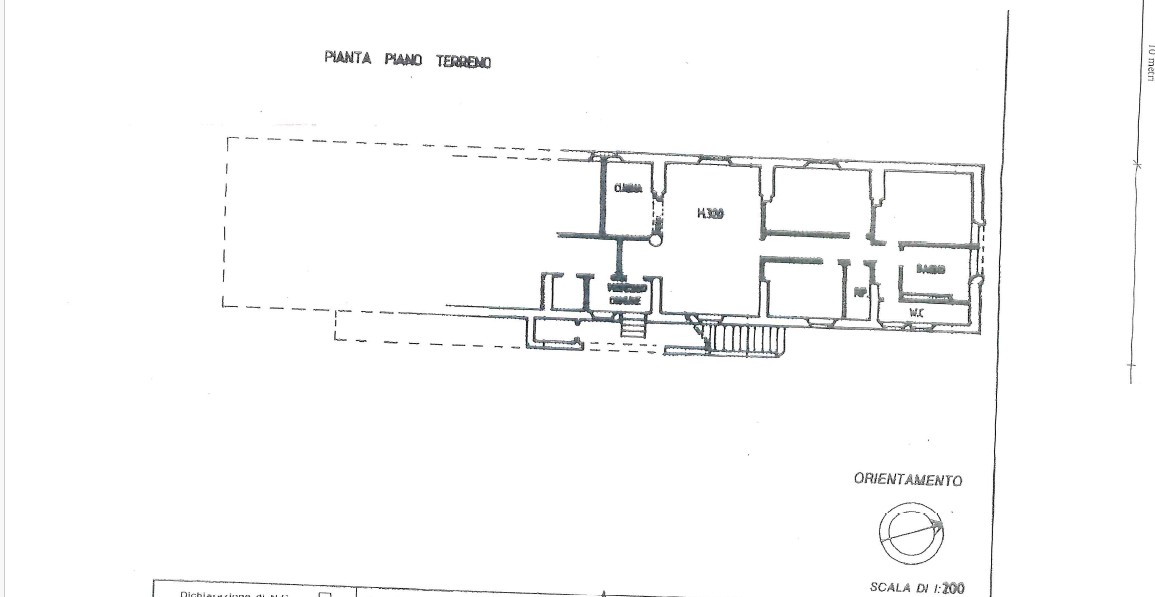
SIENA, A POCHI MINUTI DALLA CITTA'. Vendesi, appartamento ristrutturato di circa 120 mq, posto al piano terra rialzato di un fabbricato risalente al 1900. L'appartamento è caratterizzato da caratteristici soffitti a volta e si compone di ingresso, salone, cucina, camera matrimoniale, n.2 (due) vani accessori, doppi servizi e un ripostiglio. E'inoltre presente una porzione di magazzino .Distanze: Siena 5 km, San Rocco a Pili 5 km, Sovicille 6 km, Rosia 9 km.
Richiedi informazioni su questo immobile
I campi contrassegnati dall'asterisco "(*)" sono obbligatori.
Galleria fotografica
Appartamento rif. A000132






