Casale/Rustico in vendita a Monteriggioni, Periferia
Riferimento C000038
ZonaPeriferia
TipologiaCasale/Rustico
Metri quadrati400
Vani10
ComuneMonteriggioni
Classe energeticaIn fase di richiesta (0 KWh\m2a)
Prezzo€ 980.000
Descrizione
MONTERIGGIONI:CASTELLO DELLA CHIOCCIOLA.Antica Torre Medievale sulla Via Francigena – Monteriggioni (SI)
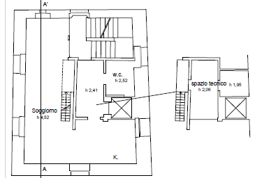
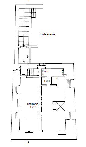
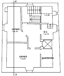
Nel cuore di un borgo storico lungo la Via Francigena, a pochi minuti da Monteriggioni e a soli 3 km da Siena, proponiamo un’esclusiva torre medievale finemente restaurata. La proprietà, un terratetto di circa 400 mq disposto su quattro livelli e servito da ascensore interno, unisce autenticità storica e comfort contemporaneo, con finiture di altissimo pregio e un attento recupero degli elementi architettonici originali.
Gli ambienti comprendono saloni di grande rappresentanza (tra cui un suggestivo salone affrescato e un living con camino d’epoca), doppia cucina, cantina in pietra ideale per degustazioni o area wellness, e una zona notte che offre fino a cinque camere (in parte già presenti e in parte realizzabili secondo progetto approvato) con cinque bagni complessivi.
All’esterno, una terrazza panoramica con vista a 360° sulle colline del Chianti, giardino privato e cinque posti auto riservati, rarità assoluta in contesto storico. Perfetta come residenza di prestigio o come struttura ricettiva di charme (boutique hotel/relais).
Richiedi informazioni su questo immobile
I campi contrassegnati dall'asterisco "(*)" sono obbligatori.
Galleria fotografica
Appartamento rif. C000038






.jpeg)