Apartment for sale in Siena, Near the center
Reference A000216
AreaNear the center
TipologyApartment
Square meters80
Rooms3
CitySiena
Energetic classB (0 KWh\m2a)
Price€ 325.000
Description
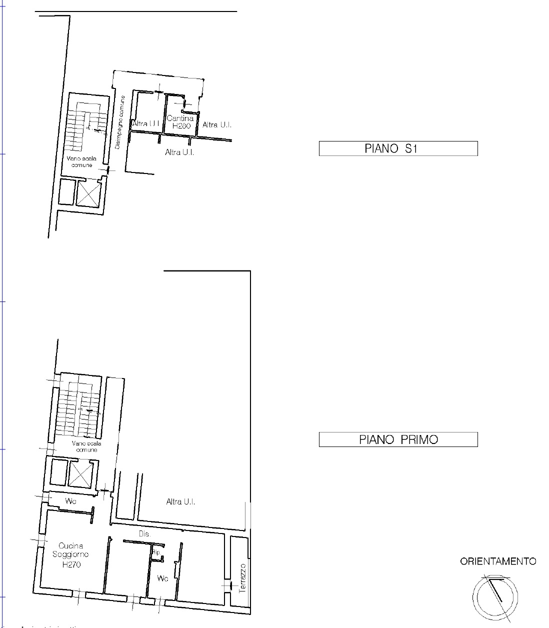
SIENA, DOWNTOWN. A nice apartment for sale on the first floor of a modern building featuring a lift and solar panels. The apartment measures approximately 80sq.m and is comprised of open space with kitchen, double bedroom with spacious balcony, single bedroom, two bathrooms and storage/laundry room. Features: covered car parking space, cellar, condominium parking. Almost facilities are reachable on foot.
Request information on this property
The fields marked with an asterisk "(*)" are compulsory.
Photogallery
Rif. A000216






